2700 E Valley Parkway 64Escondido, CA 92027




Mortgage Calculator
Monthly Payment (Est.)
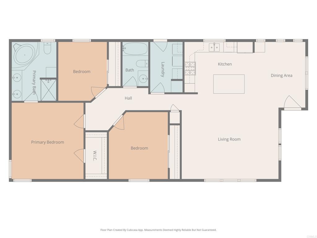
$1,706Newer 3 bed / 2 bath built in 2018 and located in an ANY Age / Family community! Feel good about reducing your carbon footprint and lowering your impact on the environment while you reap the benefits of reduced energy costs due to the SOLAR installed on this home. Buyer to assume solar loan and monthly payments of approx. $247, which have replaced a much higher monthly electricity bill. As one more added benefit, the homeowner receives a reimbursement for solar energy not used by True Bill annually. This beautiful home boasts an open floorplan with a lovely Island Kitchen with stainless steel appliances, recessed lighting and a spacious dining bar. The Primary Suite offers a walk in closet and an ensuite Bathroom with double sinks and a separate tub and shower. This Cavco “Sedona Ridge” has many factory upgrades including vaulted ceilings, crown and baseboard molding, cornice window boxes, wood window sills, lever door handles and switches, and so much more! 4 ceiling fans in addition to Central A/C for comfort. The exterior offers a front porch, spacious covered carport for up to 3 vehicles, and a convenient storage shed. Monthly space rent is only $1,039.63 per month! Community offers social activities and many amenities including a clubhouse, pool, spa, basketball court, game room, work out room, billiards, dog park, and much more! This community has no age restrictions and allows 2 indoor pets per household (breed restrictions apply).
| 2 weeks ago | Listing updated with changes from the MLS® | |
| a month ago | Listing first seen on site |
This information is for your personal, non-commercial use and may not be used for any purpose other than to identify prospective properties you may be interested in purchasing. The display of MLS data is usually deemed reliable but is NOT guaranteed accurate by the MLS. Buyers are responsible for verifying the accuracy of all information and should investigate the data themselves or retain appropriate professionals. Information from sources other than the Listing Agent may have been included in the MLS data. Unless otherwise specified in writing, the Broker/Agent has not and will not verify any information obtained from other sources. The Broker/Agent providing the information contained herein may or may not have been the Listing and/or Selling Agent.

Did you know? You can invite friends and family to your search. They can join your search, rate and discuss listings with you.